Die Reithalle Rastatt wurde 2008 nach umfangreichen Sanierungs- und Umbaumaßnahmen der Öffentlichkeit übergeben. Das denkmalgeschützte Gebäude vereint elegant neobarocke Architektur mit modernem Innenleben und bildet neben der BadnerHalle und dem Kellertheater einen weiteren wichtigen Spielort für kulturelle Veranstaltungen.
Ebenso finden hier zahlreiche Ausstellungen, Informationsveranstaltungen, Vereins- und Betriebsfeste sowie private Feiern statt.
Der Theatersaal der Reithalle bietet dabei Platz für bis zu 244 Besucher, der Bürgersaal für bis zu 328 Gäste.
Raumplaner

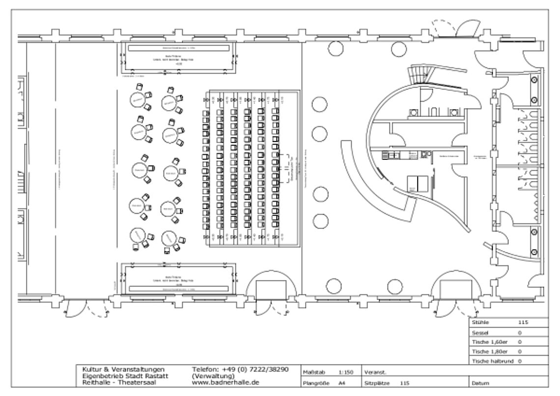
Theatersaal · Reihen-Mix-Bestuhlung · 115 Sitzplätze

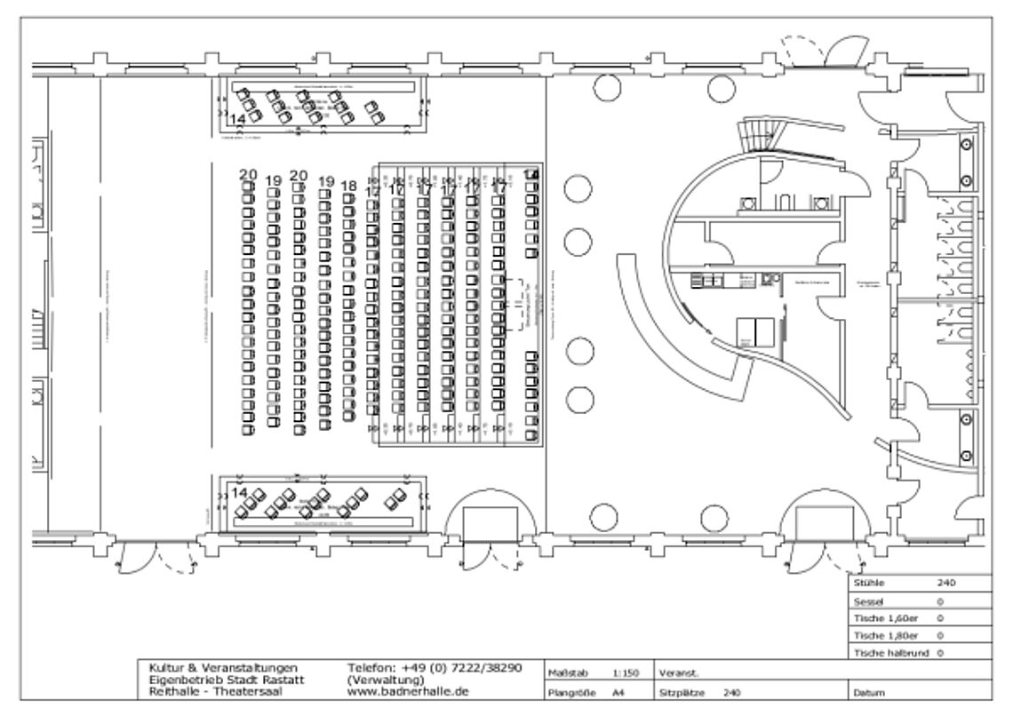
Theatersaal · Reihenbestuhlung · max. 244 Sitzplätze
Bitte beachten Sie: Die gezeigten Bestuhlungspläne sind als Bestuhlungsbeispiel zu verstehen. Die verbindlichen Bestuhlungspläne werden bei Anmietung der Halle abgestimmt und vertraglich vereinbart.

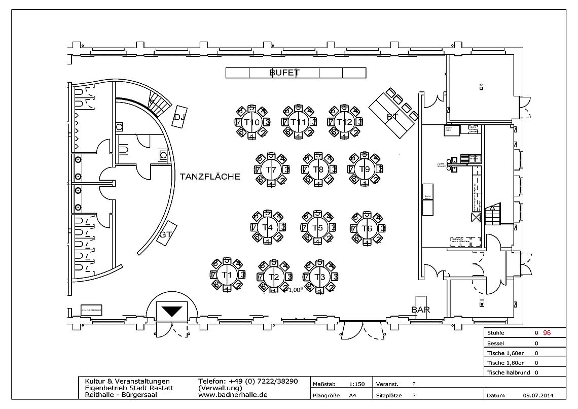
Bürgersaal · Bankettbestuhlung rund · ca. 450 m² Grundfläche · 96 Sitzplätze (im Beispiel)
Bitte beachten Sie: Die gezeigten Bestuhlungspläne sind als Bestuhlungsbeispiel zu verstehen. Die verbindlichen Bestuhlungspläne werden bei Anmietung der Halle abgestimmt und vertraglich vereinbart.

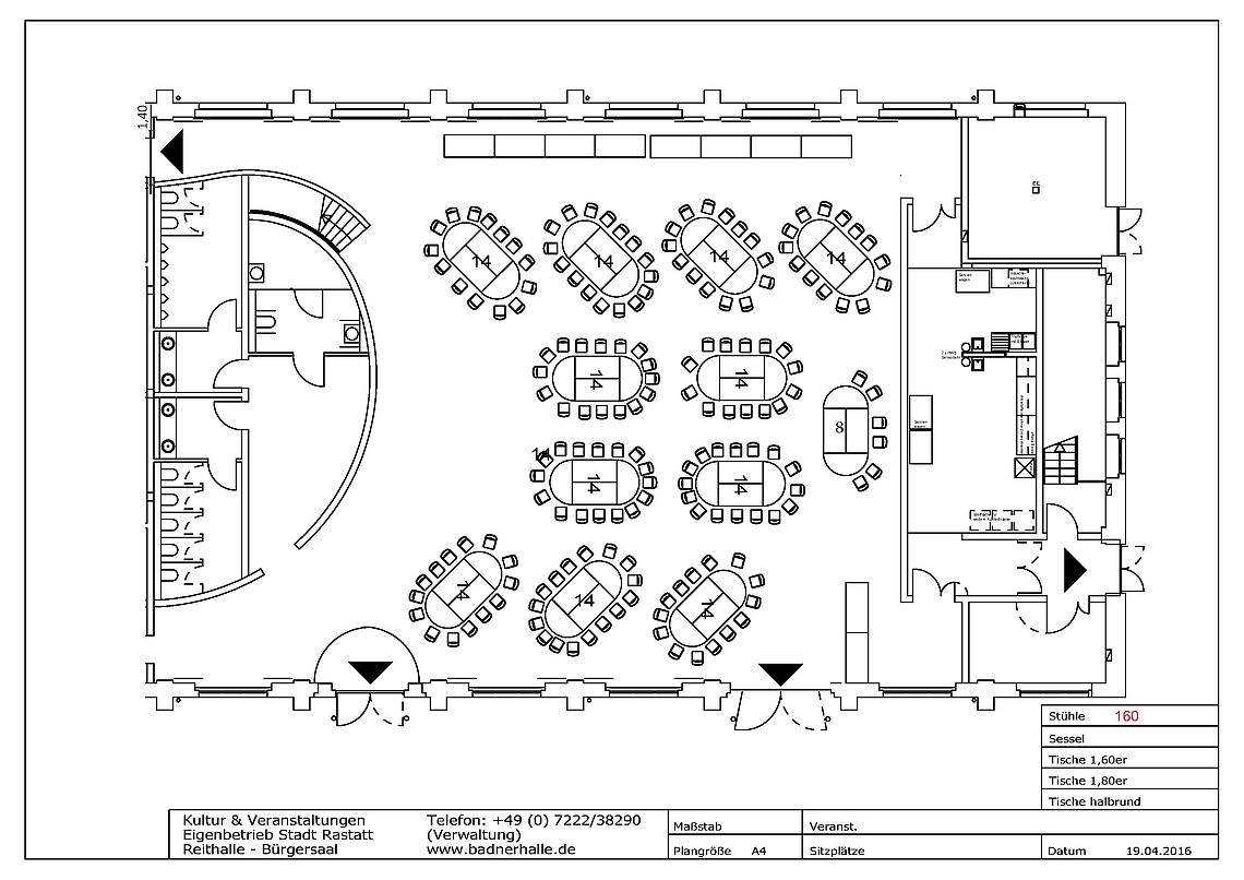
Bürgersaal · Bankettbestuhlung oval · ca. 450 m² Grundfläche · 160 Sitzplätze (im Beispiel)
Bitte beachten Sie: Die gezeigten Bestuhlungspläne sind als Bestuhlungsbeispiel zu verstehen. Die verbindlichen Bestuhlungspläne werden bei Anmietung der Halle abgestimmt und vertraglich vereinbart.

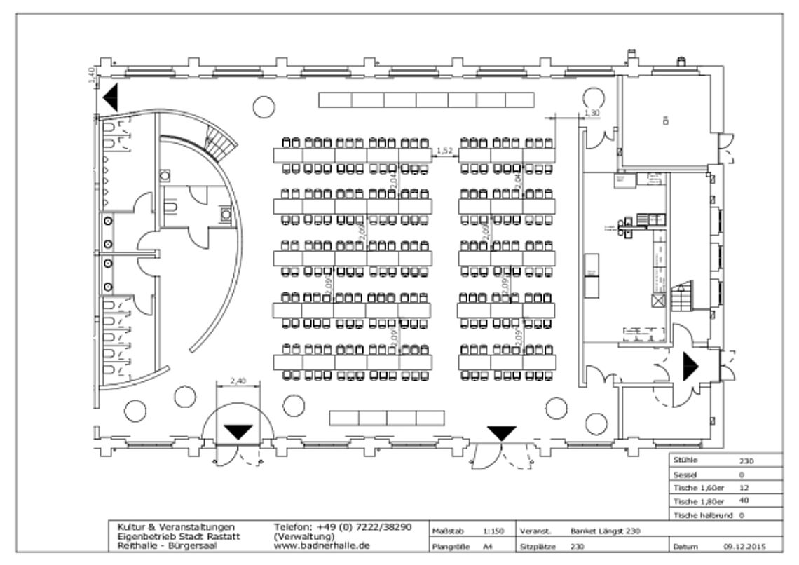
Bürgersaal · Bankettbestuhlung (längs) · ca. 450 m² Grundfläche · 230 Sitzplätze (im Beispiel)
Bitte beachten Sie: Die gezeigten Bestuhlungspläne sind als Bestuhlungsbeispiel zu verstehen. Die verbindlichen Bestuhlungspläne werden bei Anmietung der Halle abgestimmt und vertraglich vereinbart.

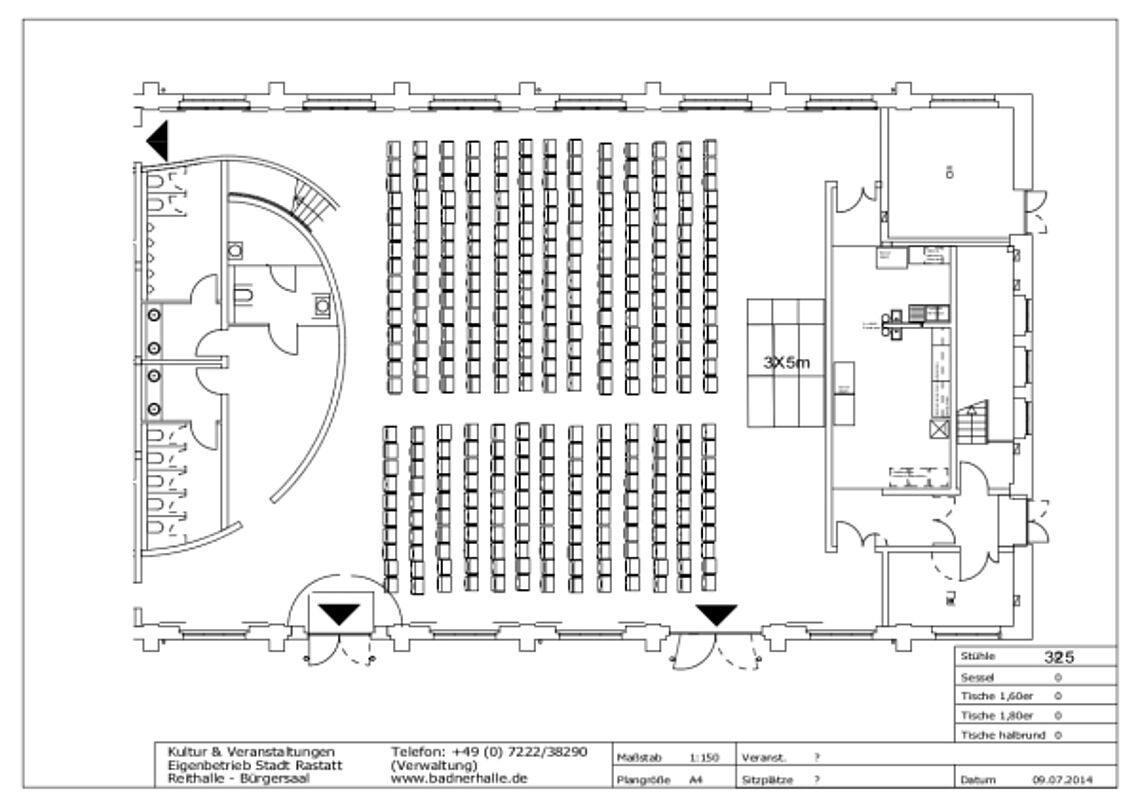
Bürgersaal · Reihenbestuhlung · ca. 450 m² Grundfläche · 325 Sitzplätze (im Beispiel)
Bitte beachten Sie: Die gezeigten Bestuhlungspläne sind als Bestuhlungsbeispiel zu verstehen. Die verbindlichen Bestuhlungspläne werden bei Anmietung der Halle abgestimmt und vertraglich vereinbart.